JZ-S/449静态可调延时中间继电器技术要求及开孔尺寸-上海上继科技有限公司
发表时间:2019-10-29 14:07 浏览次数:646 〖返回〗
一、JZ-S/449静态可调延时中间继电器概述
JZ-S/449静态延时中间继电器,用于各种继电保护和自动控制装置中,以增加保护盒控制回路的触点数量和触点容量,可自由调节所需的通电延时和断电延时。
二、JZ-S/449静态可调延时中间继电器命名及含义

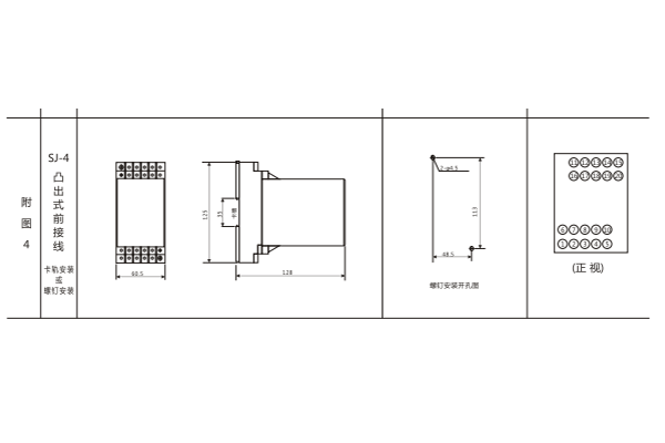
三、JZ-S/449静态可调延时中间继电器外形结构及开孔尺寸图

四、JZ-S/449静态可调延时中间继电器技术要求
1.静态中间继电器采用线圈电压较低的多个优质密封小型继电器组合而成,防潮、防尘、不断线,可靠性高,克服了电磁型中间继电器导线过细易断线的缺点。
2.功耗小,温升低,不需外附大功率电阻,可任意安装及接线方便。
3.继电器触点容量大,工作寿命长。
4.继电器动作后有发光管指示,便于现场观察。
5.延时只需用面板上的拨码开关整定,延时精度高,延时范围可在0.02-5.00S任意整定。
公司介绍:上海上继科技有限公司是一家专业从事电力系统继电保护及智能电网电力自动化产品的研发、设计、生产、销售和服务为一体的高科技公司。拥有资深继电保护专家团队和国内**的检测仪器及校验设备。同时还引用国内外先进技术,来进行技术创新。本公司的产品广泛用于电力、工矿、铁路、建筑等国家重大工程输配变电系统上,产品远销东南亚及中东地区。产品通过国家继电保护及自动化设备质量监督检验中心检测,获得ISO9001国际质量体系认证。“科技创新,诚信务实”是公司的经营理念,本公司以高超的技术支持和对用户高度负责的售后服务赢得了输配电成套企业的信赖,且树立了良好的信誉。
上海上继科技有限公司(专注电力保护继电器生产厂家)销售热线:021-57233089 QQ:1932551438
{以上内容仅供参考,上海上继科技有限公司有最终解释权}
更多继电器精彩文章——JZ-S/443静态可调延时中间继电器开孔尺寸及技术条件





